Description
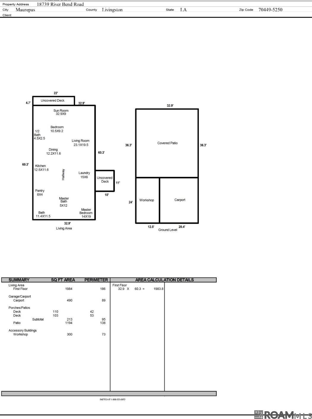
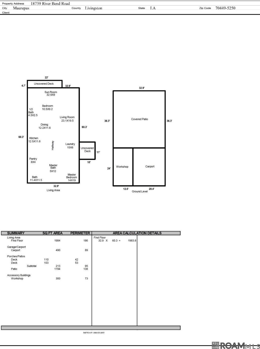
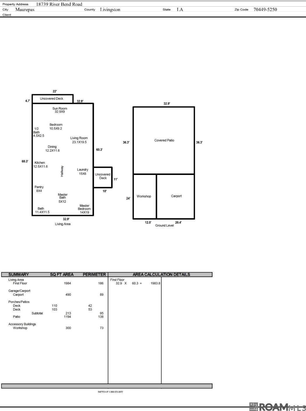
Escape to the Amite River where every day feels like a vacation! This 2 bedroom,2.5 bath camp or full-time retreat offers the perfect setup for relaxing weekends, entertaining, or multi-family stays. Bonus: the vacant lot next door is included, giving you extra space for an RV, camper, future build, or simply room to spread out and enjoy. Easy access with a residential elevator large enough for a wheelchair — no stressing over the stairs. Inside, the open living area is spacious and filled with natural light, all overlooking the river. There’s plenty of room for entertaining or even adding bunk space as a 3rd bedroom for larger groups. Enjoy river views from the sunroom and cook without missing the fun at the wet bar with a stovetop. A walk-in pantry offers abundant storage for groceries, cookware, and everything you need for extended stays. Downstairs, enjoy the shaded area beneath the camp — the perfect hangout for crawfish boils, relaxing, or watching the kids play. You’ll also appreciate the extra parking and covered storage across the street. Did NOT flood in 2016. Seller offering a carpet allowance. Refrigerator and couches remain. River life is calling — schedule your showing today!
Location
Listed By
Similar Listings
No similar listings found
Unfortunately, we don't have any similar listings at the moment. Please remove or change some of the selected filters.
Listing information provided courtesy of the Greater Baton Rouge Association of Realtors. IDX information is provided exclusively for consumers' personal, non-commercial use, and it may not be used for any purpose other than to identify prospective properties consumers may be interested in purchasing. The data is deemed reliable, but is not guaranteed accurate by the MLS. Updated: 24th April, 2026 11:47 PM (UTC)
Listing Agent: Rae Broussard
Listing Office: Keller Williams Realty-First Choice
Attribution contact: 225-744-0044


